
簡介
1、城鎮、中小城市生活糞便、(污泥)集中收集預處理(如運糞車由城市環衛部門管理),裝車后運至集中傾倒點,一般都傾倒至城市污水管道。為了防止管道堵塞及維護管道良好運行,使用糞便一體化預處理裝置,該裝置包括垃圾清除、除砂及塊狀無機物質等預處理功能,最適于環衛部門及城市排水管理部門的糞便及污泥預處理。
2、目前城市,尤其是中小城市和城鎮的生活糞便或污泥集中傾倒于城市污水管道,往往由于雜物、垃圾、沉砂、建筑垃圾等未得到預處理清除而極易造成管道堵塞D=1.0m也有被堵的情況。
3、所推薦的糞便(污泥)一體化預處理裝置,就是集垃圾清除、沉砂、篩砂及清砂等功能于一體,能達到預處理的目的,效果好、較徹底地清洗糞便、污泥,經自動化操作過程,從而最大限度地降低勞動強度和維護環境衛生,并且該裝置可以做到完全密閉防止臭氣外溢,同時通過擠壓篩清及減小篩清的重量及體積從而降低處理清運費用,清除垃圾、沉砂與石塊等雜物以確保污水管網系統及城市污水的正常運行。
4、這種處理裝置是鋼結構構造,根據不同規格,最大可通過的處理量達100m3/h,為了得到高的去除效率,垃圾清除器細格柵的凈間距由5-20mm不同規格、格篩間隙為0.25至5mm的不同規格,為了防止細格柵和格篩在運行過程中堵塞,因此要用相當數量的水沖洗清洗的,而糞便或污泥的進入,往往要通過真空吸泥車或其他清運裝置使其流入一體化裝置,通過一體化預處理裝置,將大大降低和減輕城市污水管道及污水廠的垃圾、沉砂處理負荷。
5、預處理裝置可以根據要求,有糞便(污泥)接收裝置,帶后續沉砂的糞便(污泥)接水裝置,帶聯合垃圾清除、沉砂和砂分離的一體化裝置三大類,由此派選出多種規格和型號。
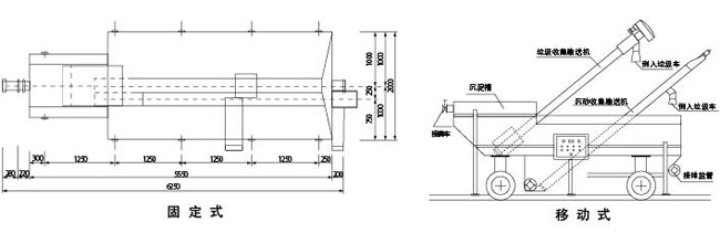
一體化處理裝置平面尺寸控制圖示
固定式、移動式糞便預處理裝置尺寸圖

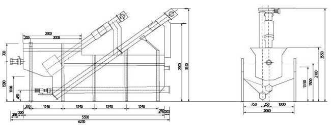
帶垃圾清除、砂沉淀和砂水分離并除砂一體化型糞便預處理裝置尺寸圖

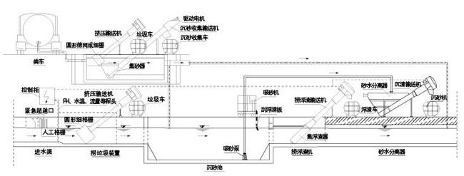
集垃圾、除砂、篩分為一體的污水、污泥、糞便集中處理站(配固定式或移動式預處理一體化裝置)
