
xӽQO
(һ)ȫԄܛˮO
1
ԓϵȫԄܛˮɳ֬}AȽMɡքeFLECK˾AUTOTROL˾a֬|鲣䓡̼䓃rz316LP䓡}|в䓻PEϵyԄӻ̶ȸo茣˹ǂyքܛˮOQaƷ
2c
ͨ^FxӽQ^ԄӻȫֻǶڼ}
/rgͿƣ_\еĽɿ
ܛˮF˵}ˮġ|ˮ
ռeСo
3m÷
VڸNIcܛˮƂ䡣偠tˮ{ϵyaˮӡȾʳƷИIˮ|ˮ
4gָ˼Ҫ
ԭˮӲȣ<8[H+]mmol/L
ԭˮ<5mg/l
ԭˮӲ>8[H+]mmol/Lrhöܛ
ˮӲȣ<0.03[H+]mmol/L
ډ0.20.6Mpa
ضȣ250
ԿԴ220V50Hz
10W
O係p<0.8Kgf/cm2
̖֬xӽQ֬0017(c)
Mˮˮ0.2MpaՈbܵ
}}
rüӵ}ֱӼӹI}
5FLECKLܛˮϵyҪg

6AUTOTROLܛˮϵyҪg

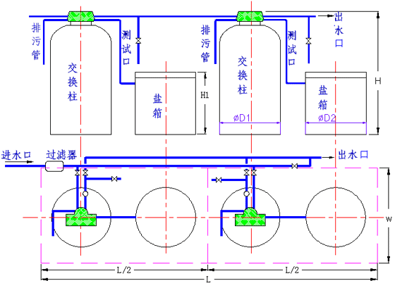
7ܛˮbʾD
FLECKybʽ

AUTOTROLybʽ

()NNQ͟o픉cxӽQ



()TNHLwxӽQ

