
用途
ZCCG型垂架式中心傳動刮泥機適用于中心進水、周邊出水、中心排泥的中、大型池徑的輻流式沉淀池,主要用于的城鎮污水處理廠二次沉淀池的排泥。
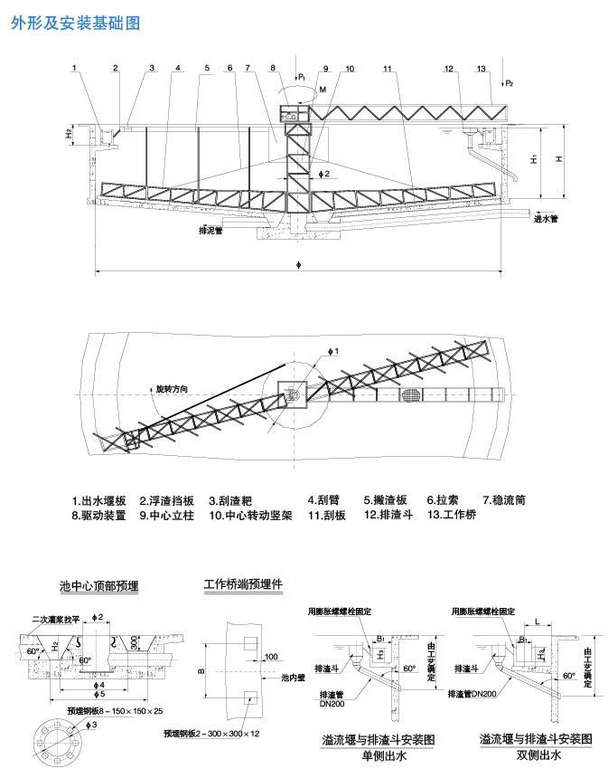
結構及工作原理
該設備采用中心傳動、垂架式,污水從進水管流入導流筒擴散后,均勻地向周邊呈輻射狀流出,呈懸浮狀的污泥經沉淀后沉積于池底,驅動裝置帶動中心豎架旋轉,并帶動刮臂及刮泥板轉動,將污泥從池周刮向中心集泥槽后,靠池內靜水壓由排泥管排出池外,水面的浮渣通過撇渣裝置撇向池邊,再由刮渣耙刮進排渣斗內排出池外;而上清液則通過三角形出水堰板溢入出水槽內排出。
主要特點
1、工作橋采用半橋式,其材質可采用碳鋼或不銹鋼結構。
2、驅動裝置采用斜齒輪減速機與蝸輪減速機相組合,保證輸出扭矩及轉速,傳動效果高。
3、減速機內設有過力扭矩保護裝置,運轉安全可靠。
4、設備操作簡便,可直接就地/遠程控制設備的運行。
型號說明


