
用途
YQG型橋式刮泥機主要用于城鎮污水處理廠及自來水廠的平流式沉淀池的排泥,該機為單向刮泥,根據用戶要求,可增設撇渣、撇渣裝置。
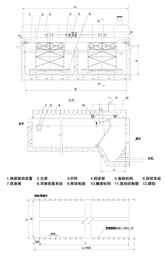
結構及工作原理
該設備采用移動橋式,當刮泥機不工作時,即停在進水端;當刮泥機工作時,順水流行駛時,先放下撇渣板,將池面浮渣撇向池端鋼制撇渣槽內,而刮泥板被提離池底;反向行駛時,放下刮泥板,將池底污泥刮向池端集泥槽內,而撇渣板被提起,離開液面以防浮渣逆行;依此作往返工作運動,從而達到刮泥、撇渣的目的。
主要特點
1、雙邊驅動,兩側滾輪傳動同步,運行平穩。
2、水上行車采用鋼輪行走,水下刮扳采用橡膠滾輪行走。
3、撇渣與刮泥為反向工作。
4、操作簡便,可直接就地/遠程控制設備的運行。
型號說明

主要技術參數和安裝尺寸表

外形及安裝基礎圖
